全国24小时上门茶,小姐威客兼职2024最新消息,免费24小时全国空降,免费全国空降app入口在哪

深圳市金环宇电线电缆有限公司

网站地图

杨小姐 :13827451949 QQ :2850667656
付小姐 :15919767227 QQ :2850667650
翟小姐 :13510639693 QQ :2850667655
闫先生 :15919875057 QQ :2850667651

您所在的位置:首页 > 新闻资讯 > 电线电缆知识

电力电缆的敷设方式

1、电力电缆直埋敷设

直埋敷设是将电缆直接埋在地下的一种敷设方式,其具有投资省的显著优点,是广泛应用的一种敷设方式。直埋电缆的深度不应小于0.7m,穿越农田时不应小于1.0m。直埋电缆的沟底应无硬质杂物,沟底铺100mm厚的细土或黄沙,敷设后再加盖100mm的细土或黄沙,然后用水泥盖板?;ぃ浞笊杩矶扔Τ缋铝讲喔?0mm,也可用砖块替代水泥盖板。回填至沟的一半时,铺设警示带,回填完成后,在电缆转弯处、中间接头处、与其他管线相交处等特殊路段放置明显的方位标志和标桩,以增强防止外力破坏能力。

 

 

2、电力电缆槽敷设

电缆槽敷设是在开挖后,沟槽底板采用100mm~150mm厚混凝土垫层,两侧沟壁采用240mm砖墙,沟底铺100mm厚的细土或黄沙,敷设后再加盖100mm的细土或黄沙,盖板采用水泥盖板。深度不应小于0.7m,穿越农田时不应小于1.0m。这种方式相对直埋敷设来说,对电缆的?;ど院?,适用于地形稍复杂的地段。

 

 

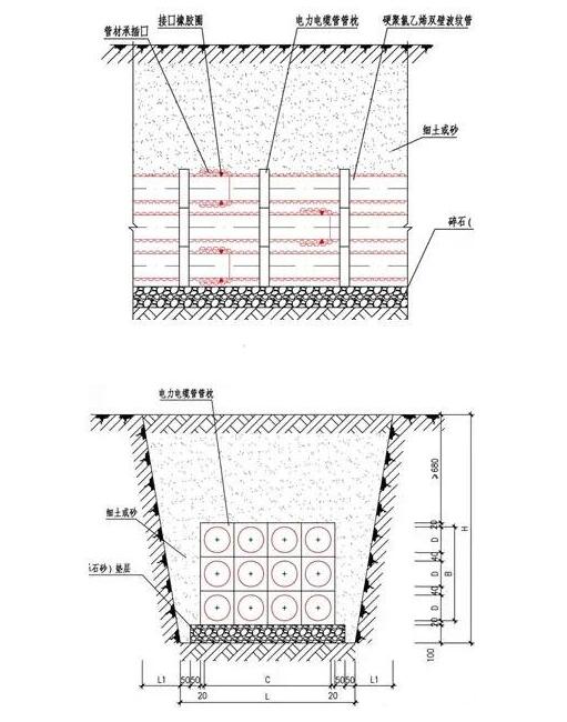
3、电力电缆?;す芊笊?/p>

保护管(又称排管)敷设一般采用低摩高强维纶水泥管或玻璃钢管等,管壁采用混凝土包封。每隔50m~60m左右设置检查井,排管顶部土壤不小于0.5m,纵向排水坡度不小于0.2%。该敷设方式主要优势在于施工相对简单,工期较短,路面无电缆沟盖板。电缆排管的不足之处在于巡视不方便,不易于故障寻测,电缆散热条件差,载流量较小等。

 

 

4、电力电缆沟敷设

电缆沟主要是按设计要求开挖并砌筑沟道,沟道的侧壁焊接承力角钢架并按要求接地,上面盖以盖板的地下沟道,就是电缆沟。它的用途就是敷设电缆的地下专用通道。

5、电力电缆隧道敷设

容纳电缆数量较多、有供安装和巡视的通道、全封闭型的地下构筑物称为电缆隧道。其敷设称为电缆隧道敷设。电缆隧道根据施工方法一般分为明挖隧道、暗挖隧道、顶管隧道、盾构隧道等。

  1. 上一篇:正确的选择电线电缆及敷设安装技术
  2. 下一篇:电力电缆敷设中应注意的问题

热品推荐

快速通道

金环宇 家装电线 电力电缆 工程案例 新闻资讯 企业介绍 联系我们
杨小姐:138 2745 1949 企业QQ:2850667656 邮箱:13827451949@139.com 杨小姐:138 2882 1707 企业QQ:2850667655 邮箱:13828821707@139.com 付小姐:159 1976 7227 企业QQ:2850667650 邮箱:15919767227@139.com 付小姐:138 2882 8976 企业QQ:2850667651 邮箱:13828828976@139.com 大宗洽谈:135 1063 9693翟小姐 企业QQ:2850667659 邮箱:13510639693@139.com 问题反馈·投诉建议: 闫先生:159 1987 5057 邮箱:15919875057@139.com 网 址:www.5xiaobai.cn/